Chalet à proximité de Charmey pour une résidence principale

Cliquer pour agrandir
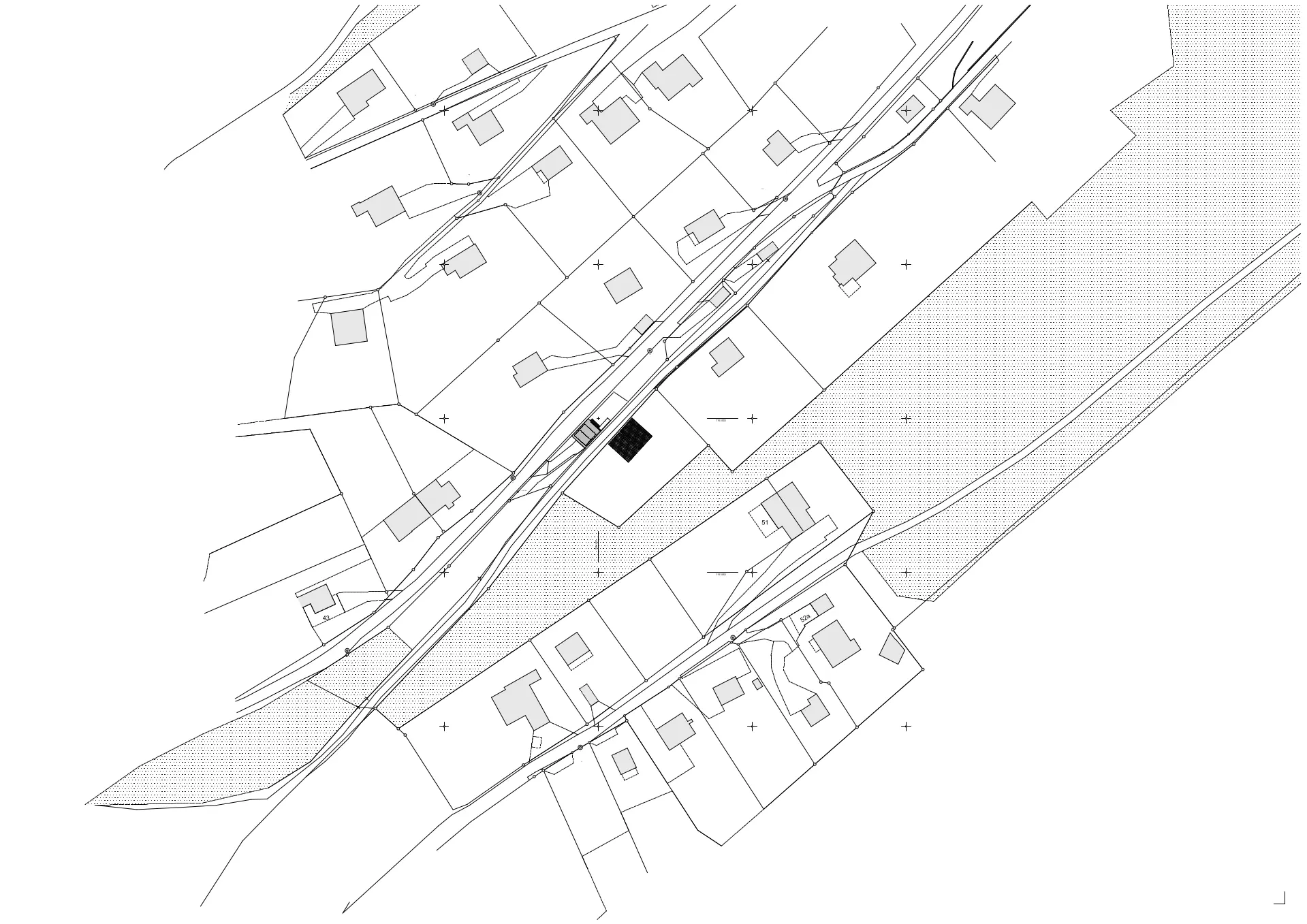
situation

Cliquer pour agrandir
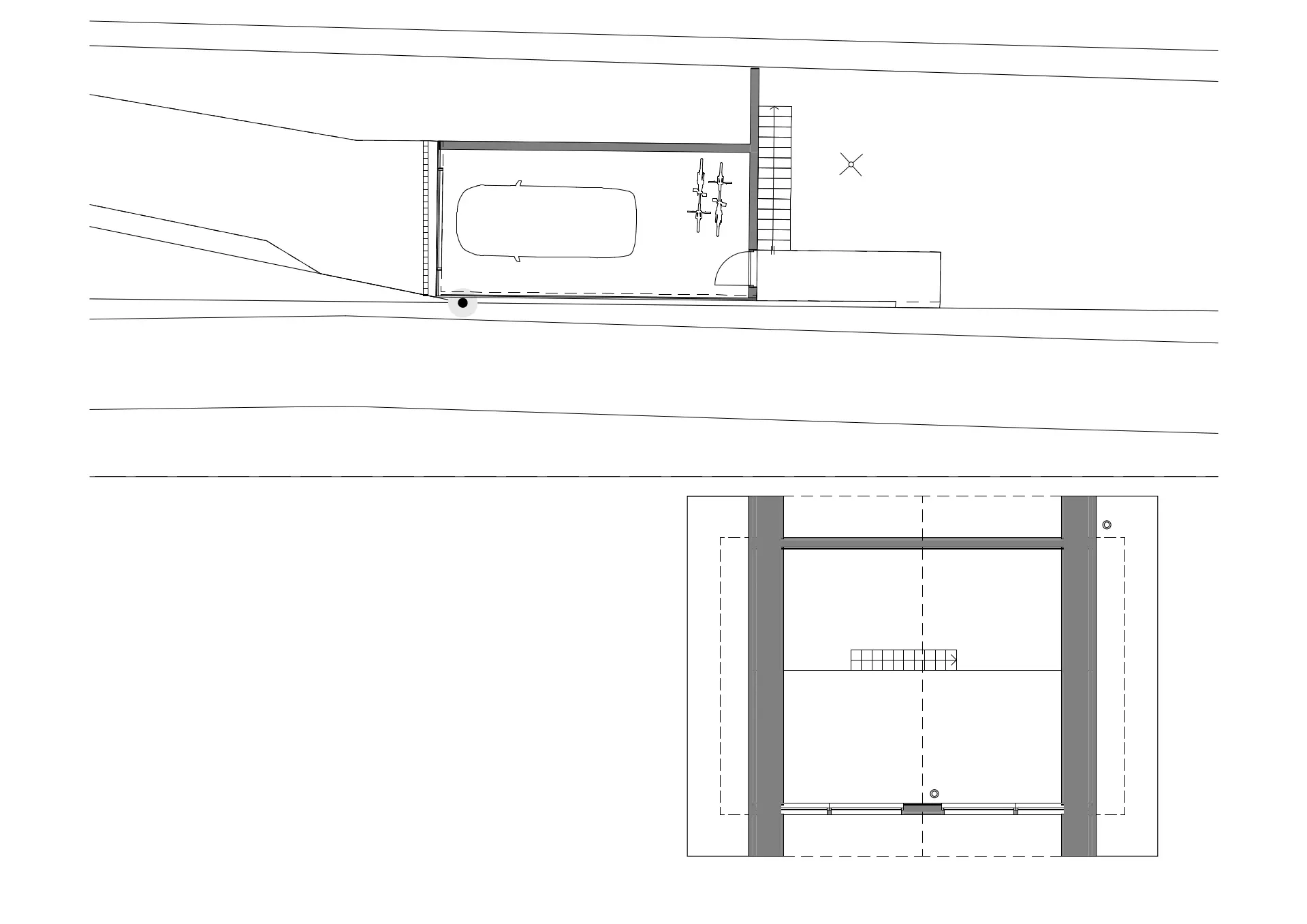
rez inférieur

Cliquer pour agrandir
rez supérieur

Cliquer pour agrandir
comble
Contact
Chemin des Maladières 22
2022 Bevaix
contact(at)a-et-d.ch